
Live end dead end
by Paul McGowan
As we move forward building the new Octave Recording studio we're learning a great deal from both Gus Skinas and J.I. Agnew.
Most of you know Gus, the mastering engineer of some note (you name the artist and it's likely Gus has mastered something of theirs), and Copper Magazine readers know of J.I. from his articles on the big move and tape machines.
In terms of isolation and sound quality, J.I. is the principal architect behind the design of the studio.
And, it's a big challenge.
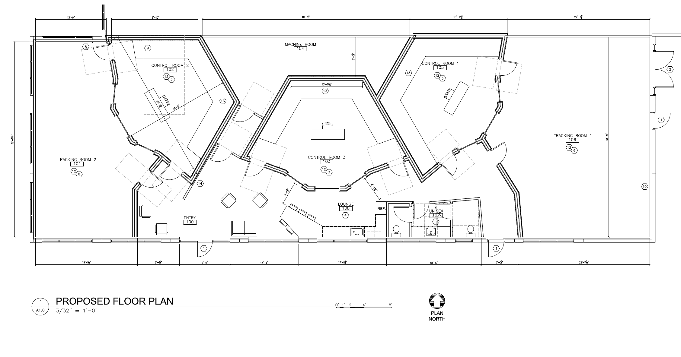
Have a look at the sketch of what's being proposed.
For those of you not familiar with the in-crowd terminology of recording studios, a tracking room is the studio where the musicians play and the control room is where the engineers and equipment sit. The middle control room is a pure mixing room where the tracks laid down in the studios can later be mixed and mastered.
You can see the problem in terms of isolation. Imagine having simultaneous work going on: a rock band playing in Tracking Room One at the same time as a delicate piano piece is being recorded in Tracking Room Two and in the middle, we're mixing something loud. Each room has to be completely isolated from the others. A tall challenge, indeed.
What's interesting to me is how J.I. is making the wider part of the control live, while the narrow parallel wall behind where the engineer sits is as dead as night. There, more than three feet thick absorbers are built into the space in an effort to keep the front wall live and the back wall dead. And, all the while, no bleed.
I'll keep you up to date as to our progress.

- Choosing a selection results in a full page refresh.
- Opens in a new window.